HOME
Projekte (Auswahl)
Sanierung MGH. "Runkelsstrasse", Triesen
Ersatzeubau "Lehaböhel", Triesen
Sanierung EFH. "Maschlina", Triesen
Neubau EFH. "Litzi", Triesenberg
Sanierung EFH. "im Feld", Triesen
Neubau MFH. "St. Mamerten", Triesen
Neubau MFH. "Gossahalda", Triesen
Neubau ÜB. "Schibabüchel", Triesenberg
Neubau ÜB. "Leitawis", Triesenberg
Neubau MFH. "Malarsch", Schaan
Neubau ÜB. "Lehaböhel", Triesen
Neubau Ferienhütte "Tuass", Triesen
Sanierung DFH. "Riet", Triesen
Referenzen (Auswahl)
Wohnüberbauung, Balzers, FL
Dorfzentrum, Biberist, CH
Hochhaus, Basel, CH
Mehrfamilienhaus, Freiburg, DE
Studium
Masterthesis
Paravent
Medellín
Fotografie
Dienstleistungen
Büro
Kontakt
Nachhaltigkeit
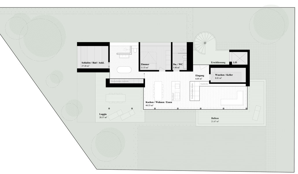
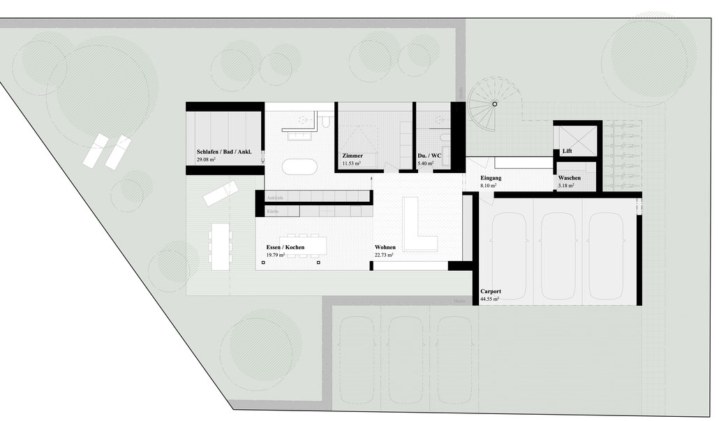
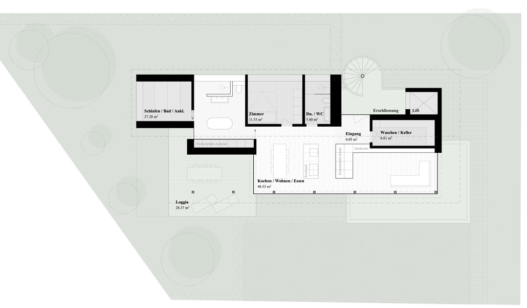
Neubau MFH. "im Malarsch", Schaan, FL
Neubau eines MFH.'s im Grünen
Projektstatus: Vorprojektsphase
Nach oben scrollen