Neubau Zweifamilienhaus, "Gossahalda", Triesen, FL

 

Neubau eines Zweifamilienhauses in ortsbildrelevanter Umgebung

 

Projektstatus: Vorprojektsphase


Pläne

Erdgeschoss

 

 


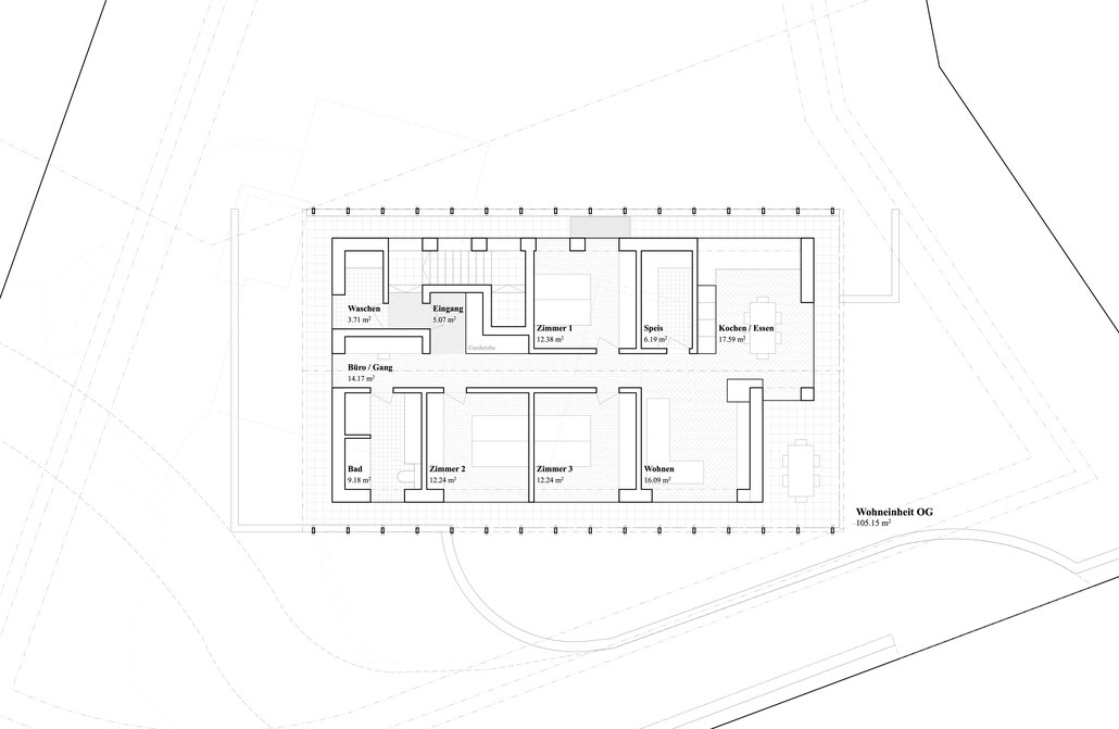
Obergeschoss

 

 



Visualisierungen